当前位置: 首页 > 产品大全 > 农村自建房全套施工图详解 从建筑结构到水电布局

农村自建房全套施工图详解 从建筑结构到水电布局

农村自建房全套施工图详解 从建筑结构到水电布局

建设一套功能完善、安全舒适的农村住宅,一套完整、专业的建筑结构水电施工图是至关重要的蓝图和依据。它不仅指导施工的全过程,更是确保房屋质量、安全、合规以及未来使用便利性的核心文件。本文将系统性地解析一套完整的农村住宅施工图所应包含的主要内容及其关键要点。

一、 建筑方案与总平面图

这是整套图纸的“总纲”,决定了住宅的宏观布局。

  1. 建筑平面图:包括各层(首层、标准层、阁楼等)的详细布置,清晰展示房间功能(客厅、卧室、厨房、卫生间等)、尺寸、门窗位置、墙体厚度及室内交通流线。农村住宅需特别考虑堂屋、农具存放、粮食晾晒等空间的合理规划。
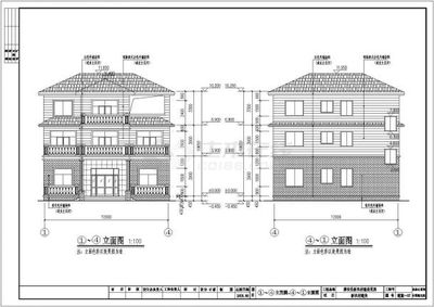
  2. 立面图与剖面图:立面图展示房屋四个方向的外观造型、材质(如真石漆、面砖、文化石)、门窗样式及屋顶形式(坡屋顶、平屋顶)。剖面图则像一把“手术刀”,纵向剖开房屋,清晰揭示室内空间的高度关系、楼层结构、屋顶坡度、门窗过梁等关键构造。
  3. 总平面布置图:标明住宅在宅基地上的具体位置、朝向、与周边道路、邻居建筑的距离、庭院规划、化粪池位置、出入口等,确保符合当地规划要求并合理利用土地。

二、 结构施工图——房屋的“骨骼”

结构图确保房屋坚固稳定,抵抗各类荷载,是安全之本。

  1. 基础结构图:根据地质勘察报告设计,明确基础形式(条形基础、独立柱基、桩基础等)、埋深、尺寸、配筋及混凝土强度等级。农村常见为砖混或框架结构,基础设计至关重要。
  2. 主体结构图
  • 砖混结构:提供各层结构平面布置图,明确承重墙、构造柱、圈梁的位置、尺寸及配筋详图。构造柱与墙体的拉结筋布置必须清晰。
  • 框架结构:提供梁、板、柱的平法施工图,详细标注构件尺寸、配筋(主筋、箍筋)、标高及节点大样图。
  1. 楼板与屋面板结构图:明确楼板厚度、配筋(双层双向或负筋)、混凝土强度,以及预留孔洞(如楼梯口、管道井)的位置和加固措施。坡屋顶需有檩条、屋架结构图。
  2. 楼梯结构详图:包含楼梯梁、板、踏步的尺寸、配筋及与主体结构的连接节点。

三、 给排水施工图——房屋的“血液循环系统”

规划生活用水、排水及雨水系统,确保用水安全便捷,排污通畅环保。

  1. 给水系统图:标明入户给水管径、材质(如PPR管)、走向,以及至各用水点(厨房、卫生间、洗衣区等)的支管布置。需考虑设置总阀门、水表位置,并预留太阳能或热水器接口。
  2. 排水系统图:包括生活污水和雨水两套系统。清晰绘制排水立管、水平支管、干管的管径、坡度、走向及连接方式。重点标注卫生间排水、厨房排水、庭院排水与化粪池的连接。必须注明通气帽的设置,防止返臭。化粪池的位置、容积、构造应有详图。
  3. 卫生器具布置图:结合平面图,明确马桶、洗手盆、淋浴、厨盆等洁具的准确位置及给排水点位,便于预埋。

四、 电气施工图——房屋的“神经系统”

规划强电(照明、动力)与弱电(网络、电视、安防),满足现代生活需求。

  1. 配电系统图:展示总配电箱、各楼层分配电箱的回路划分、断路器规格、电线电缆型号及线径。农村住宅需考虑三相电入户(如有大功率农用设备)或单相电入户。
  2. 照明与插座平面图:在所有建筑平面图上,标注所有灯具、开关、普通插座、空调插座、厨房专用插座、卫生间防水插座的具体位置、安装高度及控制关系。客厅、卧室应预留足够插座,厨房应设独立回路。
  3. 弱电系统图:规划电视、电话、网络光纤的入户点及室内分配点位置,建议每个主要房间预留网络接口,客厅及主卧预留电视接口。可考虑预留家庭安防监控、智能家居的管线。
  4. 防雷与接地平面图:根据规范设计避雷带(针)、引下线及接地装置,确保人身及电器安全。

五、 关键要点与注意事项

  1. 合规性与审批:施工图必须符合国家及地方农村建房标准,并送交乡镇相关部门审批或备案,取得《乡村建设规划许可证》后方可动工。
  2. 专业设计:强烈建议委托有资质的设计人员或机构进行设计,避免凭经验施工导致的结构安全隐患或功能缺陷。
  3. 图纸会审:施工前,业主、施工队、设计方(如有)应共同核对图纸,理解设计意图,解决疑问。
  4. 因地制宜:充分考虑当地气候、材料获取、生活习惯(如北方保暖、南方通风防潮)等因素进行设计调整。
  5. 预留与预埋:水电管线需在结构施工阶段同步预埋,避免后期开槽破坏结构。为未来可能添置的设备(如电梯、净水系统)适当预留条件。

****
一套详尽、规范的农村住宅全套施工图,是连接美好家园构想与坚实现实之间的桥梁。它不仅是施工的指令书,更是质量、安全和投资效益的保障书。在动工之前,投入必要的精力和资源用于规划和设计,将为未来数十年的安居乐业奠定最坚实的基础。

如若转载,请注明出处:http://www.kqjtwx.com/product/33.html

更新时间:2026-04-16 04:09:54

产品列表

PRODUCT